Enter your address or APN to check if this home fits on your property
Enter your property street address or APN
Construction

BAM Homes
Keystone Homes LLC, dba Bay Area Manufactured Homes (BAM Homes), is a licensed manufactured home dealer and contractor specializing in single-family homes, ADUs, mobile homes, and park models in California. Located in Antioch, we provide turnkey services including design, permits, installations, and construction. Our homes come from top brands like Skyline, Clayton, and Champion / Redman, featuring our popular Creekside Manor ADUs. Specializing in affordable ADUs, single-family homes, and park models, BAM Homes serves mobile home parks and manufactured home communities across Northern California and the Bay Area.
Get started with BAM Homes
Find, design, and order your next home in a few clicks.
Mechanical
Interior
Kitchen
Bathroom
Bedroom
Dealer License #:
Images of homes are solely for illustrative purposes and should not be relied upon. Images may not accurately represent the actual condition of a home as constructed, and may contain options which are not standard on all homes.
$74,900
Studio | 1 Bath | 440 Sq. Ft. | 15' 2" x 29'
$99,900
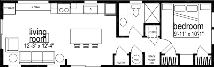
2 Bed | 1 Bath | 743 Sq. Ft. | 15' 2" x 49'
$101,900
2 Bed | 1 Bath | 757 Sq. Ft. | 23' 4" x 32'